約17坪 【美装バー居抜き】造作代金不要 東心斎橋2丁目
物件番号:45215
- 物件番号45215
- 担当 湯浅
| 所在地 | 大阪市中央区 東心斎橋二丁目 | ||
|---|---|---|---|
| 階数 | 5階(6階建て) | ||
| 面積(坪数) | 約17坪 (56.19㎡) | ||
- 賃料
- 363,000円
- 共益費(管理費)
- 25,300円
- 礼金
- 1,800,000円
- 保証金(敷金)
- 300,000円
- 敷引き
- ー
- 坪単価
- 21,352円
- 初期費用概算
-
2,851,300円
※初期費用には、別途諸費用が必要となります。
(保証会社保証料・看板作成費・火災保険料・看板使用料など)
最終更新:2026/02/04 09:17:19
業種制限なし

コンカフェやボーイズバー等
営業形態はなんでもご相談ください。
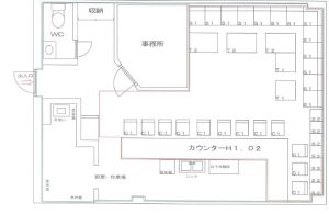
カウンター+広いボックス席

L字カウンター12席と、
3つ分程のボックス席が
約14席あります。
ヘルプ椅子を使うことで、もう少し
席数を増やせるでしょう。
また、個室も完備しています。
設備充実で即営業可能
製氷機・台下冷蔵庫・給湯器・エアコン等
開業に必要な設備&什器は全て揃っています。
厨房区画も広いので、メニューにこだわった
ダイニングバーにも対応可能です。
☆内覧は随時可能。(現在営業中の為、時間制限あり)
☆家賃保証会社加入。
☆カラオケ業者は指定です。
☆貸主承諾済みの転貸です。
※造作代金不要です。
ご興味のある方は 物件番号:45215
とスタッフにお伝えください。
ラインでのお問い合わせはこちら↓
メール問い合わせはコチラです。
☆心斎橋や長堀橋で賃貸店舗・居抜き物件を
お探しならサン・アクトにおまかせください☆
| 駅徒歩 |
御堂筋線 心斎橋駅 徒歩5分 長堀鶴見緑地線 長堀橋駅 徒歩6分 御堂筋線 なんば駅 徒歩11分 |
||
|---|---|---|---|
| 想定席数 | ー | 使用可能設備 | 冷蔵庫, 製氷機, エアコン, エレベーター |
| 現状 | 使用中 | 引き渡し時期 | 予定 3月中旬 |
| 備考 |
保証会社加入必須 貸主承諾済み転貸(サブリース) |
||
物件へのお問い合わせはこちら
物件に関するお問い合わせは【物件番号:45215】をお伝え頂けますとスムーズにご案内出来ます。
-
大阪府大阪市中央区南船場3丁目6−1 エスプライム心斎橋 303